10 The Ruskins, Kings Road, Bembridge, PO35 5NY
homeTerraced
bed5 Bedroom
bathtub3 Bathroom
Offers in Excess of £475,000

Summary

This modern, spacious property is situated in a prime location within Bembridge village, with easy access to the village centre and to the harbour with its sailing facilities.
The generous sized accommodation is laid out over three floors, comprising entrance hall, an open plan sitting room, dining room and kitchen, a conservatory, and a WC on the ground floor. This is complemented by three double bedrooms , an en suite shower room and a bathroom on the first floor and two further bedrooms and a bathroom on the second floor.
Externally, there is an enclosed rear garden with a raised patio area and a lawned front garden. The property also benefits from a single en bloc garage.
This is a lovely home which benefits from being in an elevated position, therefore allowing glimpses of the harbour. It is presented in a good order throughout within a sought after development in the village, and is offered for sale chain free.

Floors/rooms

Ground Floor

Entrance Hall - A half glazed front door leads into a spacious entrance hall with stairs to the first floor and an under stairs storage cupboard. Radiator and fitted carpet.

Open Plan Living Area - A naturally bright, airy and sociable living space which opens out into the garden. Comprises:

Sitting Room - 14' 6'' x 10' 7'' (4.42m x 3.23m) Feature gas coal effect fire with a hearth. Double glazed window to the front. TV point and telephone point. Radiator and fitted carpet. Opens through to:

Dining Room - 11' 1'' x 10' 7'' (3.4m x 3.23m) Patio doors to the conservatory and a breakfast bar with cupboard space under. Wooden flooring. Radiator. Opens through to:

Kitchen - 11' 1'' x 9' 8'' (3.4m x 2.97m) Fitted with a range of wall and floor units with work surfaces over, an inset sink unit and tiled surrounds. Integrated dishwasher, plumbing for a washing machine and space for a fridge freezer. Space for a range style cooker with a cooker hood over. Wall mounted Worcester gas boiler. Double glazed window and glazed door to:

Conservatory - 10' 8'' x 16' 3'' (3.27m x 4.97m) Double glazed construction with a polycarbonate roof, French doors to the garden and a door to the side. Fitted carpet and under floor heating.

WC - Accessed from the hallway and fitted with a wash basin set in a vanity unit with cupboard space under, and WC. Obscured double glazed window to the front, tiled flooring and radiator.

Garage - 16' 6'' x 9' 9'' (5.05m x 2.98m) An en bloc garage with an up and over door, power and light and a pitched roof.

First Floor

First Floor Landing - Fitted carpet and an airing cupboard housing the hot water cylinder.

Bedroom 1 - 11' 1'' x 10' 7'' (3.4m x 3.23m) A double room with a double glazed window to the rear. Radiator and fitted carpet. Door to:

En-suite Shower Room - Fitted with a tiled shower cubicle, a wash basin and WC. Extractor fan and light with a shaver point. Radiator. Tiled flooring.

Bedroom 2 - 11' 7'' x 10' 7'' (3.54m x 3.23m) A double room with a double glazed window to the front. Radiator and fitted carpet.

Bedroom 3 - 11' 2'' x 9' 8'' (3.41m x 2.97m) A double bedroom with a double glazed window to the rear. Radiator and fitted carpet.

Bathroom - Fitted with a panelled bath with a shower over and a glass screen, a wash basin and a WC. Obscured double glazed window to the front. Tiled splashbacks, extractor fan and light with a shaver point. Tiled flooring.

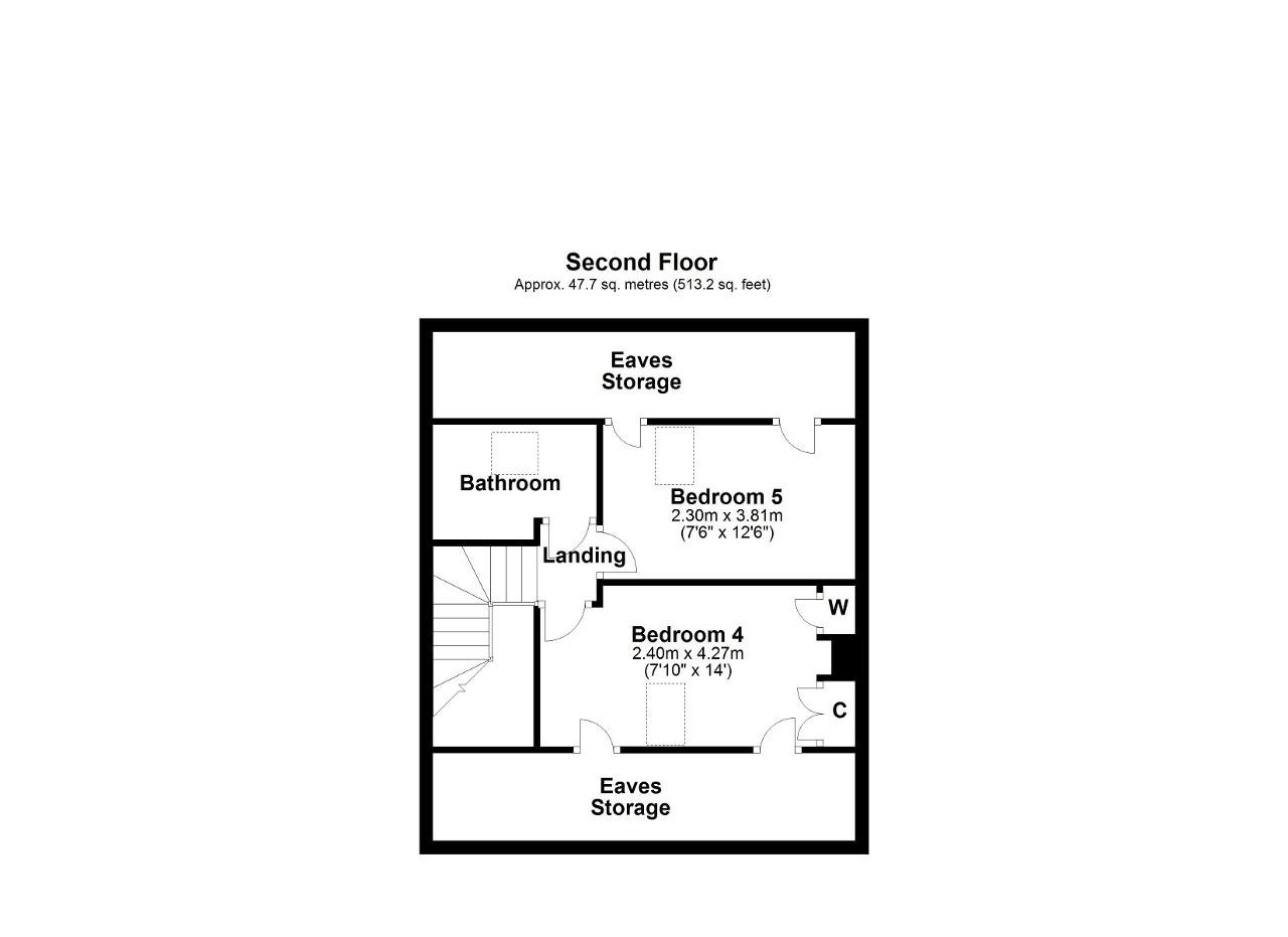
Second Floor

Second Floor Landing - Fitted carpet and access to the loft space.

Bedroom 4 - 7' 10'' x 14' 0'' (2.4m x 4.27m) Velux window to the front with glimpses of Bembridge Harbour. Built in wardrobe, cupboard and shelving. Storage into the eaves space. Radiator and fitted carpet.

Bedroom 5 - 7' 6'' x 12' 5'' (2.3m x 3.81m) Velux window to the rear. Storage into the eaves space. Radiator and fitted carpet.

Bathroom - Fitted with a panelled bath with a shower over and a glass screen, a wash basin and a WC. Velux window to the rear. Extractor fan and radiator. Tiled flooring.

Exterior

Outside - A lawned garden to the front has a gravelled path leading to the front door.
The enclosed rear garden has a raised patio area which is paved and is an ideal spot for al fresco dining. Outside tap.

Garage - 16' 6'' x 9' 9'' (5.05m x 2.98m) An en bloc garage with an up and over door, power and light and a pitched roof.

Additional Information - Heating: A gas fired boiler provides domestic hot water and heating via panelled radiators.
Tenure: Freehold
EPC rating: C
Council tax band: D

MISREPRESENTATION ACT 1967. PROPERTY MISDESCRIPTION ACT 1991.
Turnbull IOW Ltd, for themselves and Vendors of the property, whose agents they are, give notice that these particulars, although believed to be correct, do not constitute any part of an offer or Contract, that all statements contained in these particulars as to this property are made without responsibility and are not relied upon as statements or representations of fact and that they do not make or give any representation or warranty whatsoever to this business. An intending purchaser must satisfy himself by inspection or otherwise as to the correctness of each of the statements contained in these particulars.

Additional Information

For further information on this property please call 01983 874777 or e-mail [email protected]

EPC Graph

Interested in This Property?

01983 874777

[email protected]

Request a Viewing

Share this property:

Rightmove OnthemarketOmbudsman