Steyne Road, Bembridge, PO35 5UL
homeEnd Terraced
bed2 Bedroom
bathtub2 Bathroom
Guide Price £275,000

Summary

This period house is situated at the end of a row of terraced homes within a popular residential street in Bembridge.

The house requires modernisation throughout, and has accommodation which on the ground floor comprises entrance hall, a sitting room to the front with a bay window, dining room, a kitchen to the rear and a shower room. This is complemented by a landing, 2 double bedrooms and a bathroom on the first floor, plus an additional room which can be utilised as a study.

Externally there are good sized gardens wrapping to the front, side and rear of the house; and due to its position on the corner of Steyne Road and Preston Road there is also off road parking available.

This is a good sized home in a great village location, which has the potential for a new owner to update and renovate to their own requirements. The village shops, school, community centre and churches are close by, as are the beaches, harbour and countryside walks which surround the village.

The house is offered for sale chain free.

Floors/rooms

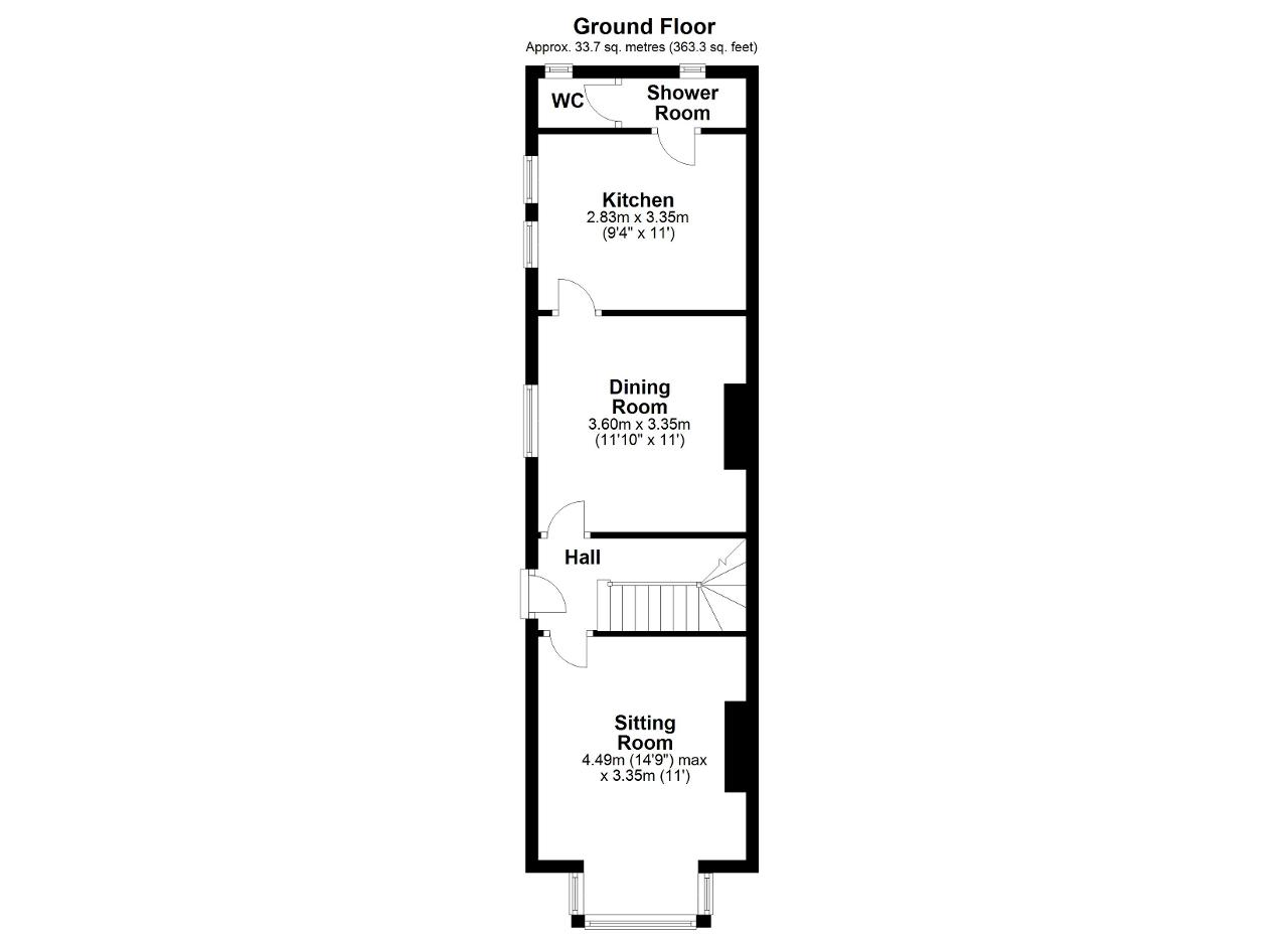
Ground Floor

Entrance Hall - A double glazed front door gives access to the entrance hall which has stairs to the first floor and a fitted carpet. Accommodation off:

Sitting Room - 14' 8'' x 10' 11'' (4.49m x 3.35m) A front aspect room with a double glazed box bay window. TV point and fitted carpet.

Dining Room - 11' 9'' x 10' 11'' (3.6m x 3.35m) Double glazed window to the side. Fitted carpet. Door to:

Kitchen - 9' 3'' x 10' 11'' (2.83m x 3.35m) Fitted with a range of wall and floor units with work surfaces over, an inset sink unit and tiled surrounds. Space for a cooker. Plumbing for a washing machine and space for an under counter fridge and freezer. 2 double glazed windows to the side. Vinyl flooring. Door to:

Shower Room - Shower cubicle fitted with an electric shower, and sink unit. Obscured double glazed window to the rear. Tiled walls and vinyl flooring. Door to:

WC - Fitted with a WC. Double glazed window to the rear. Vinyl flooring.

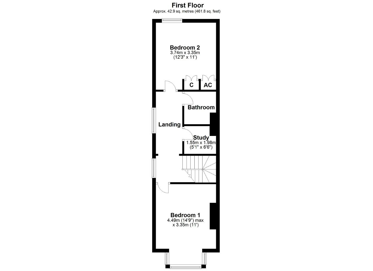
First Floor

Landing - 2 double glazed windows to the side. Access to the loft space. Fitted carpet.

Bedroom 1 - 14' 8'' x 10' 11'' (4.49m x 3.35m) A double bedroom with a double glazed box bay window to the front. Fitted carpet.

Bedroom 2 - 12' 3'' x 10' 11'' (3.74m x 3.35m) A double bedroom with a double glazed window to the rear. Built in wardrobe and cupboard housing the hot water cylinder. Fitted carpet.

Study - 5' 1'' x 6' 5'' (1.55m x 1.98m) An internal room with vinyl flooring.

Bathroom - Fitted with a panelled bath, wash basin and WC. Tiled splashbacks and fitted carpet.

Exterior

Outside - Gated access to the front of the house leads into a walled and fenced front garden. Additional gates from Preston Road lead into the side and rear gardens where there is the potential for parking.
The side garden is paved, whilst the rear garden is fenced and laid to lawn.

Additional Information - Tenure: Freehold
EPC rating: TBC
Council tax band: C

MISREPRESENTATION ACT 1967. PROPERTY MISDESCRIPTION ACT 1991.
Turnbull IOW Ltd, for themselves and Vendors of the property, whose agents they are, give notice that these particulars, although believed to be correct, do not constitute any part of an offer or Contract, that all statements contained in these particulars as to this property are made without responsibility and are not relied upon as statements or representations of fact and that they do not make or give any representation or warranty whatsoever to this business. An intending purchaser must satisfy himself by inspection or otherwise as to the correctness of each of the statements contained in these particulars

Additional Information

For further information on this property please call 01983 874777 or e-mail [email protected]

EPC Graph

Interested in This Property?

01983 874777

[email protected]

Request a Viewing

Share this property:

Rightmove OnthemarketOmbudsman