Upper Green Road, St Helens, PO33 1XF
homeTerraced
bed2 Bedroom
bathtub1 Bathroom
£260,000

Summary

Located within the delightful village of St Helens, this pretty terraced cottage is offered for sale with no onward chain. The village green and amenities are on the doorstep, whilst the harbour, beaches and countryside walks are just a short stroll away.
The cottage has accommodation comprising entrance porch, sitting room, dining room, kitchen, lobby and bathroom on the ground floor, complemented by 2 double bedrooms on the first floor. From the front of the house there are views towards Culver Downs and Bembridge, whilst the rear opens out onto a lovely enclosed garden. The rear garden is of a good size and incorporates a timber summer house and a block built shed.
Although the cottage would benefit from general updating it provides the opportunity for a new owner to redesign and decorate to their own requirements.

Floors/rooms

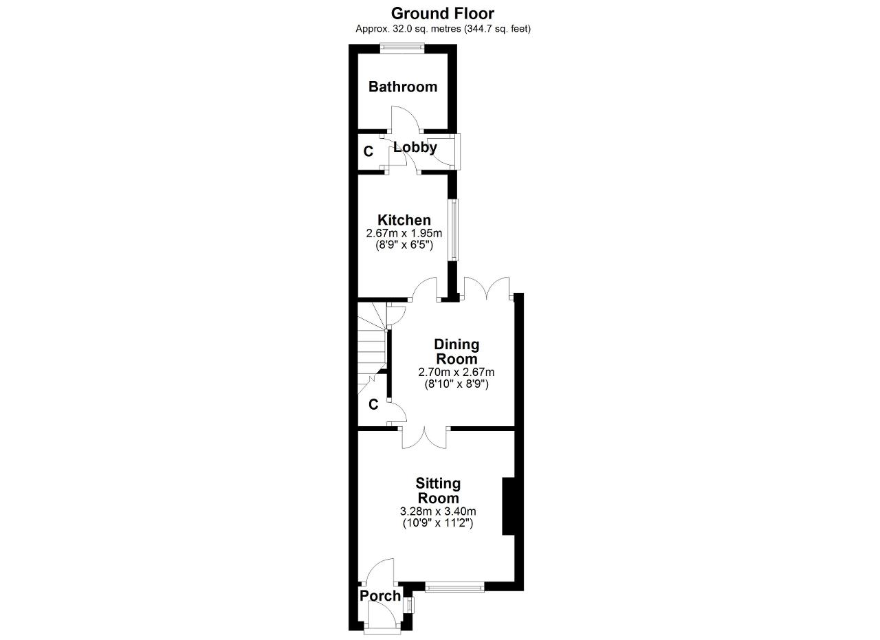
Ground Floor

Porch - A double glazed front door gives access to a porch which has a window to the side and a half glazed door to:

Sitting Room - 10' 9'' x 11' 1'' (3.28m x 3.4m) Double glazed window to the front with views towards the local countryside. TV point, telephone point, night storage heater and fitted carpet. French doors to:

Dining Room - 8' 10'' x 8' 9'' (2.7m x 2.67m) Glazed French doors leading out to the garden. Stairs to the first floor and an under stairs storage cupboard. Night storage heater and fitted carpet. Door to:

Kitchen - 8' 9'' x 6' 4'' (2.67m x 1.95m) Fitted with a range of wall and floor units with work surfaces over, an inset sink unit and tiled surrounds. Electric cooker point, space for a fridge freezer and plumbing for a washing machine. Window to the side. Vinyl flooring and door to:

Lobby - Door to the garden. Airing cupboard housing the hot water cylinder. Door to:

Bathroom - Fitted with a panelled bath with an electric shower over and a glass screen, a wash basin and a WC. Obscured window to the rear. Electric wall heater, shaver point and vinyl flooring.

First Floor

Landing - Stairs from the dining room lead up to the landing which has fitted carpet and accommodation off:

Bedroom 1 - 10' 10'' x 11' 1'' (3.31m x 3.4m) A double bedroom with a double glazed window to the front from where there are lovely views towards Culver Downs and Bembridge. Telephone point and fitted carpet.

Bedroom 2 - 8' 9'' x 8' 9'' (2.67m x 2.67m) A double bedroom with a double glazed window to the rear. Over stairs storage cupboard. Access to the loft space. Fitted carpet.

Exterior

Outside - A fenced garden to the front of the cottage has a path leading to the front door and planted flower beds.
Access from the dining room and lobby leads out to an enclosed rear garden which is paved and gravelled for ease of maintenance and has planted shrub flower beds. Timber Summer House and block built storage shed. Outside tap. Gated side access.

Additional Information - Heating: Night storage heaters.
Tenure: Freehold
EPC rating: E
Council tax band: B

MISREPRESENTATION ACT 1967. PROPERTY MISDESCRIPTION ACT 1991.
Turnbull IOW Ltd, for themselves and Vendors of the property, whose agents they are, give notice that these particulars, although believed to be correct, do not constitute any part of an offer or Contract, that all statements contained in these particulars as to this property are made without responsibility and are not relied upon as statements or representations of fact and that they do not make or give any representation or warranty whatsoever to this business. An intending purchaser must satisfy himself by inspection or otherwise as to the correctness of each of the statements contained in these particulars.

Additional Information

For further information on this property please call 01983 874777 or e-mail [email protected]

EPC Graph

Interested in This Property?

01983 874777

[email protected]

Request a Viewing

Share this property:

Rightmove OnthemarketOmbudsman