Nightingale Close, Bembridge, PO35 5YP
homeDetached Bungalow
bed3 Bedroom
bathtub2 Bathroom
£699,950

Summary

This fabulous detached bungalow is situated in a quiet, prestigious cul-de-sac off Swains Road, set within a generous sized plot of approximately 0.25 acres.

The bungalow has been beautifully maintained and cared for both internally and externally, and offers naturally bright and spacious accommodation throughout. A welcoming entrance hall leads through to an open plan sitting room and dining room which enjoys a triple aspect and opens through to a double glazed conservatory. This is complemented by a large kitchen breakfast room which leads into a utility room, 3 double bedrooms, a family bathroom and an en-suite shower room.

Externally, the large gardens wrap to all sides of the bungalow and incorporate paved seating areas, lawned gardens with well established flower beds and borders, vegetable plots and various outbuildings. These include a summer house, 2 workshops with electricity and a potting shed. A driveway to the front provides parking and leads to a detached double garage with electric doors and a further separate workshop to the rear.

This sought after location is just a short walk to the beach, the village centre, the harbour and the sailing club, and is well positioned for easy access to the network of footpaths which run through the village. This wonderful bungalow presents a great opportunity to purchase a home within a thriving coastal village which is ready for a new owner to move into, relax, and start enjoying all that this delightful property has to offer.

Floors/rooms

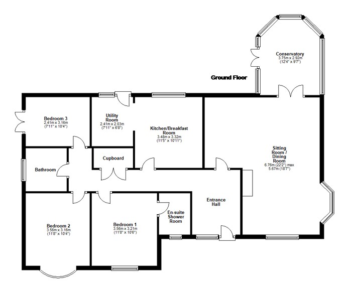
Ground Floor

Entrance Hall - A spacious hallway with a deep built in storage cupboard and a separate airing cupboard which houses a wall mounted gas boiler. 2 radiators and wood flooring. Access to the loft space. Accommodation off to include:

Sitting Room and Dining Room - 22' 2'' x 18' 7'' (6.76m x 5.67m) A naturally bright and spacious L-shaped, triple aspect room with a feature fireplace inset with a gas coal effect fire. Double glazed bow window to the side and double glazed window to the front. TV point, 2 radiators and fitted carpet. French doors giving access to:

Conservatory - 12' 3'' x 9' 6'' (3.75m x 2.92m) A double glazed conservatory with a dwarf wall, an apex roof, ceiling light and fan. French doors giving access to the garden. Radiator and tiled flooring.

Kitchen Breakfast Room - 11' 5'' x 11' 2'' (3.48m x 3.42m) Fitted with a range of floor and wall mounted units, with work surfaces over, an inset sink unit and tiled surrounds. Fitted eye level electric double oven and electric hob with a cooker hood over. Double glazed window to the rear. Radiator and tiled flooring. Open through to:

Utility Room - 7' 10'' x 6' 7'' (2.41m x 2.03m) Fitted with floor and wall mounted units with work surfaces over, an inset sink unit and tiled surrounds. Plumbing for a washing machine and a dishwasher, and space for a fridge freezer. Double glazed door and window leading out into the rear garden. Radiator and tiled flooring.

Bedroom 1 - 11' 8'' x 10' 6'' (3.56m x 3.21m) A double bedroom with a double glazed window to the front. Radiator and fitted carpet. Door to:

En-suite Shower Room - Fitted with a shower cubicle, wash basin and WC. Obscured double glazed window, heated towel rail, tiled walls and tiled flooring.

Bedroom 2 - 11' 8'' x 10' 4'' (3.56m x 3.15m) A double bedroom with a double glazed bow window to the front. Radiator and fitted carpet.

Bedroom 3 - 10' 4'' x 7' 10'' (3.16m x 2.41m) A double bedroom with double glazed French doors leading into the garden. Radiator and fitted carpet.

Bathroom - Fitted with a suite comprising panelled bath with a shower attachment over and a glass screen, a wash basin set in a vanity unit, and a WC. Obscured double glazed window, heated towel rail, tiled walls and tiled flooring.

Exterior

Outside - The bungalow is set within a generous sized plot of approximately 0.25 acres, with gardens wrapping to all sides.
To the front a block paved driveway provides parking and leads to a detached double garage and workshop. Open plan lawned gardens are planted with a variety of plants and shrubs, and are inset with paths leading to the front door.
Gated side access leads through to an enclosed rear garden which incorporates various seating areas and outbuildings. A paved patio area leads out from the conservatory and kitchen, providing the perfect spot for outside dining, and onto a lawned garden. The garden is interspersed with mature planted flower beds and borders, and incorporates a vegetable plot with raised beds and a brick built barbeque.
The outbuildings include a timber potting shed, a timber summer house, and 2 workshops with electricity.

Double Garage and Workshop - The garage has a pitched and tiled roof, power, light, 2 electric roller doors to the front and a courtesy door to the side which gives access to the patio area.
To the rear of the garage there is a brick built workshop which is accessed from the patio and also has power and light.

Additional Information - Heating: A gas fired boiler provides domestic hot water and heating via panelled radiators.
Tenure: Freehold
EPC rating: TBC
Council tax band: E

MISREPRESENTATION ACT 1967. PROPERTY MISDESCRIPTION ACT 1991.
Turnbull IOW Ltd, for themselves and Vendors of the property, whose agents they are, give notice that these particulars, although believed to be correct, do not constitute any part of an offer or Contract, that all statements contained in these particulars as to this property are made without responsibility and are not relied upon as statements or representations of fact and that they do not make or give any representation or warranty whatsoever to this business. An intending purchaser must satisfy himself by inspection or otherwise as to the correctness of each of the statements contained in these particulars.

Additional Information

For further information on this property please call 01983 874777 or e-mail [email protected]

EPC Graph

Interested in This Property?

01983 874777

[email protected]

Request a Viewing

Share this property:

Rightmove OnthemarketOmbudsman