Latimer Road, St Helens, PO33 1YR
homeFlat
bed2 Bedroom
bathtub1 Bathroom
£300,000

Summary

This purpose built waterside apartment is wonderfully positioned overlooking Bembridge Marina, perfect for enjoying a view of the active water scene from both the apartment and the gardens.

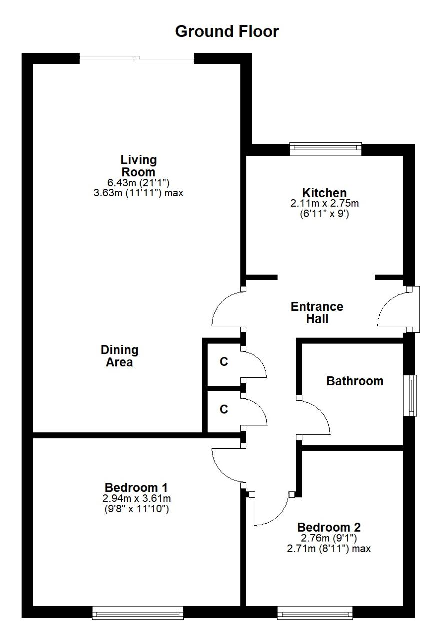
Located on the ground floor, the apartment has naturally bright accommodation which comprises entrance hall, a sitting room / dining room with doors onto the garden and a fabulous marina view, a fitted kitchen which also enjoys a view of the marina, 2 double bedrooms and a shower room.

Externally, there is parking to the front of the building, plus the added benefit of a single en-bloc garage. To the rear there are communal lawned gardens which lead onto the marina, whilst the apartment also has its own private paved patio area which is the ideal spot for outside dining and enjoying the waterside view down towards Bembridge Harbour.

Floors/rooms

Ground Floor

Entrance - A communal entrance hall gives access to a private front door to Apartment 4.
A front door leads into:

Hallway - This welcoming hallway is open into the kitchen, and has wooden flooring, a radiator and a telephone point. 2 built in cupboards, one of which has space to house a tumble dryer. Accommodation off:

Sitting Room and Dining Room - 21' 1'' x 11' 10'' (6.43m x 3.63m) A naturally bright room which enjoys an outlook onto Bembridge Marina and Bembridge Harbour. Double glazed patio doors lead out onto the private patio area and the communal lawn beyond. TV point, wooden flooring and radiator. Space for a dining table and chairs.

Kitchen - 6' 10'' x 9' 0'' (2.11m x 2.75m) A double glazed window provides an outlook over Bembridge Marina. Fitted with a range of wall and floor units with work surfaces over, an inset sink unit and tiled surrounds. Gas and electric cooker points, an integrated fridge freezer and plumbing for a washing machine. Cupboard housing a Glow Worm gas boiler. Wooden flooring.

Bedroom 1 - 9' 7'' x 11' 10'' (2.94m x 3.61m) A double bedroom with a double glazed window to the front. Built in wardrobes. Radiator and fitted carpet.

Bedroom 2 - 9' 0'' x 8' 10'' (2.76m x 2.71m) A double bedroom with a double glazed window to the front. Built in cupboards. Radiator and fitted carpet.

Bathroom - Fitted with a shower cubicle, a WC and a wash basin set in a vanity unit. Obscured double glazed window to the side. Fully tiled walls, extractor fan and heated towel rail.

Exterior

Outside - Patio doors from the sitting room lead out onto a private paved patio area, which provides the perfect spot for outside dining and to sit and enjoy this waterside position by Bembridge Marina.

Garage - An en-bloc garage with an up and over door to the front.

Additional Information - Heating: A gas fired boiler provides domestic hot water and heating via panelled radiators.
EPC rating: C
Council Tax Band: C
Tenure: Leasehold, held on the remainder of a 999 year lease from 1985.
Maintenance Charges: £720 per annum, payable monthly.

MISREPRESENTATION ACT 1967. PROPERTY MISDESCRIPTION ACT 1991.
Turnbull IOW Ltd, for themselves and Vendors of the property, whose agents they are, give notice that these particulars, although believed to be correct, do not constitute any part of an offer or Contract, that all statements contained in these particulars as to this property are made without responsibility and are not relied upon as statements or representations of fact and that they do not make or give any representation or warranty whatsoever to this business. An intending purchaser must satisfy himself by inspection or otherwise as to the correctness of each of the statements contained in these particulars.
 

Additional Information

For further information on this property please call 01983 874777 or e-mail [email protected]

EPC Graph

Interested in This Property?

01983 874777

[email protected]

Request a Viewing

Share this property:

Rightmove OnthemarketOmbudsman